Château classée MH – région de Bordeaux – France

Projet: Etudes et programmation préliminaires
Surface : 2 600m2
Rôle : Architecte 
Statut : En attente

 

Nous avons été sollicités pour réaliser les études préalables et la programmation des travaux concernant ce château classé monument historique situé dans la région bordelaise.

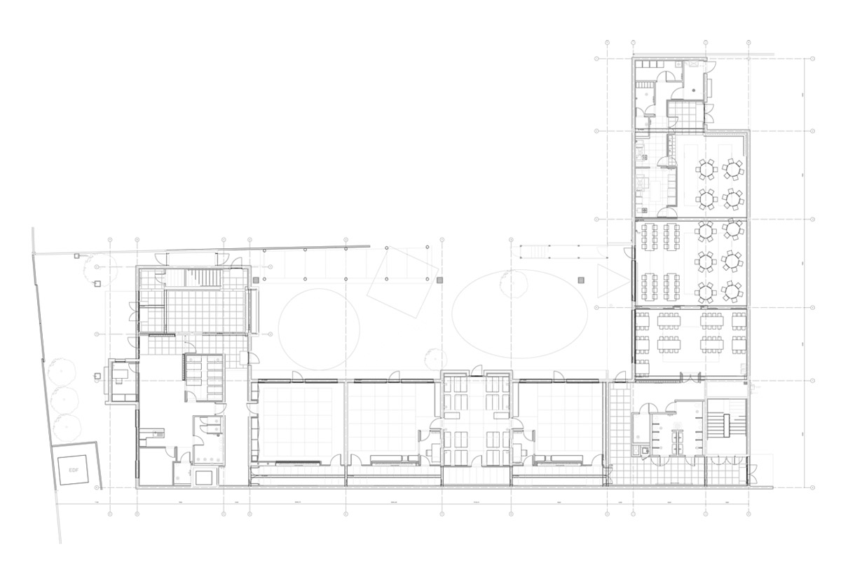
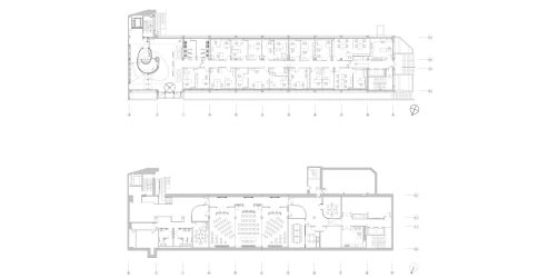
Hôpital Esquirol à Saint-Maurice – Paris – France

Études exécutées avec Pier Carlo Bontempi  
Projet: Etudes capacitaires et programmation préliminaire
Surface : 67 000m2
Rôle : Architecte / Urbaniste

 

Notre mission consiste en la réalisation d’études capacitaires et de programmation pour le patrimoine bâti de l’ancien Hôpital Esquirol à Saint-Maurice. Le programme comprend surtout des logements qui exploiteront pleinement ce cadre historique exceptionnel tout en répondant aux normes environnementales, énergiques et thermiques les plus exigeantes.

Le magnifique ensemble de l’Hôpital Esquirol est situé à la confluence de la Marne et la Seine. Bâti en pierre de taille et moellons au XIXe siècle, composé de 18 cloîtres, il de déploie de chaque côté d’un axe central dirigé vers le fleuve et qui comporte au centre une église et une cour d’honneur sur deux niveaux. Aujourd’hui le magnifique ensemble est séparé du fleuve par une autoroute. Nous avons proposé de couvrir l’autoroute et recréer un accès paysagé à l’eau avec port fluvial, plage et piscines.

Centre ecclésial Saint-Colomban – Serris (77) – France

 

Projet exécuté avec Pier Carlo Bontempi  

Projet: Ensemble ecclésial
Surface : 2 500m2
Rôle : Architecte / Urbaniste
Statut: En cours

Le projet concerne la construction d’un ensemble ecclésial , « Saint-Colomban », constitué par une Eglise de 570 places, un Presbytère et un Centre Paroissial , situé sur la Commune de Serris, dans le quartier des affaires de la ZAC de Pré de Claye.

Pour l’église du Val d’Europe, il s’agissait de proposer un bâtiment d’une dignité simple mais fière. Une église faite pour répondre aux besoins spirituels des fidèles, les accueillant au sein d’une grande communauté fraternelle. La volonté était de construire une église à la fois universelle et exprimant la tradition architecturale locale. La nef est orientée sur l’axe Est-Ouest, l’abside à l’Est éclairée par le premier rayon de soleil de la journée, symbole de la lumière divine éclairant la vie humaine.

En résonance avec des traditions locales, les matériaux utilisés sont la pierre, la brique, le bois, les enduits ton pierre et les toitures en ardoise naturelle. La charpente en bois est visible depuis l’intérieur de la nef. Les bâtiments sont conçus selon les caractéristiques architecturales propres à la tradition locale de l’Ile-de-France et plus particulièrement du département de la Seine-et-Marne.

 

Projets Divers au Moyen Orient

 

Projet: Etudes dans le Moyen Orient
Surface : 1000 … 100 000 m2
Date: 1996 … 1999
Rôle : Architecte
Statut : Projets

Bureaux de la Fondation « American Battle Monuments Commission » – Paris (75) – France

 

Lieu: Paris, France
Projet: Siège social
Surface : 1 800 m2
Rôle : Architecte
Statut : Projet

 

Notre projet de 1 800 m2 sur un niveau unique “the Paris Village » pour le nouveau siège Européen de l’American Battle Monuments Commission était conçu pour satisfaire aux exigences du client, et notamment de mettre en valeur les qualités de “rigueur, ordre, sécurité, puissance, fierté, émotion, et dans l’espace et dans l’histoire”.

 

Notre proposition est une expression de toutes les émotions que le temps et le sacrifice ont laissées dans cette organisation.

Colonie de Vacances – Normandie (76) – France

 

Lieu: Le Havre, France
Projet: Colonie des vacances
Surface : 2 900 m2
Rôle : Architecte
Statut : Réalisé

 

 

Le projet pour l’extension de locaux recevant des colonies de vacances comporte la création de salles de sports et d’espaces polyvalents, avec intervention sur deux bâtiments du 17ème siècle — un corps de ferme et un manoir normand — ainsi que sur un édifice en béton datant des années 1950.

Réhabilitation et Transformation du Site Industriel – Le Grand Hornu – Belgique

 

Lieu: Hornu, Belgique
Projet : Réhabilitation d’un complexe industriel du 19ème siècle
Surface : 150 000 m2
Rôle : Architecte et urbaniste
Statut : Réalisé

 

Le Grand-Hornu est un ancien complexe industriel-minier, témoin remarquable de la Révolution Industrielle. Erigé entre 1810 et 1830 par Henri De Gorge, capitaine d’industrie d’origine française, il constitue un véritable projet de ville, exemple unique d’urbanisme fonctionnel sur le continent européen au début de la grande ère d’industrialisation.
Construit dans le style néoclassique, le Grand-Hornu comprend des ateliers, des bureaux et une cité ouvrière. Rythmés par des arcades, des frontons et des fenêtres en demi-lunes, les ateliers et les bureaux du charbonnage constituent un ensemble majestueux.
Nous avons joué un rôle de première importance dans la réhabilitation de ce complexe industriel de grande échelle. Le site abrite aujourd’hui le Musée des Arts Contemporains de la Communauté française, des espaces de restauration, une librairie, des boutiques, des salles de conférences.

 

Siège Social pour la Chambre de Commerce et d’Industrie (CCI) – Paris – France

 

 

Lieu: Paris
Projet: Siège social
Surface : 9500 m2
Rôle : Mission complète
Statut : Réalisé

 

Sur la colline de Chaillot, entre le Trocadéro et ses jardins, avec vue sur la Seine et la Tour Eiffel, le site jouit d’un emplacement exceptionnel au sein du 16ème arrondissement de Paris. Le palais d’Iéna qui fut construit en 1937 par Auguste Perret s’est enrichi en 1960 d’une extension bordant l’avenue du président Wilson. Le bâtiment construit en béton armé par un des élèves de Perret, Paul Vimond, présente deux façades en longueur bénéficiant d’un éclairage naturel traversant, depuis l’avenue vers le jardin intérieur.
Lorsque l’agence Mellett Architects est invitée par la Chambre de Commerce Internationale à réadapter l’aile Vimond afin d’y installer son futur siège, l’enjeu était de transformer ces espaces en un environnement de travail qui soit fonctionnel et adapté aux divers métiers de la CCI qui compte plus de 200 salariés.

Réhabilitation de l’Ambassade d’Irlande – Paris (75) – France

 

Lieu: Paris, France
Projet: Rénovation, réhabilitation et mise en conformité d’un bâtiment protégé au titre des Monuments historiques
Surface : 2 400 m2
Rôle : Architecte et architecte d’intérieur
Statut : Réalisé

 

Nous avons réhabilité l’hôtel de Breteuil, un bâtiment datant de la fin du 19e siècle situé sur
l’Avenue Foch où l’ambassade d’Irlande à Paris est installée depuis 1954. Le programme des travaux pour les extérieurs du bâtiment a compris les façades en pierre, la toiture, les fenêtres et les volets, les portes cochères et les jardins coté Avenue Foch. Tous les travaux étaient soumis à l’accord des Architectes des Bâtiments de France.
L’intérêt principal de la rénovation intérieure de l’Ambassade était de retrouver sa splendeur historique en faisant appel au savoir-faire d’artisans spécialisés. En appliquant les normes en vigueur pour l’accessibilité et pour l’incendie, nous avons rénové les intérieures pour réaliser les adaptations nécessaires au fonctionnement contemporain du bâtiment. Nos interventions ont respecté les éléments historiques du bâtiment tels les boiseries du 17e siècle dans les salles de réception, les sols et parquets, paumée et mosaïque, stuc, peinture, dorure, rénovations des lustres, tapisseries, rideaux et marbres.

 

 

Ecole Maternelle – Flins-sur-Seine (78) – France

Lieu: Yvelines, France
Projet: École maternelle
Surface : 1 600 m2
Rôle : Mission complète
Statut : Réalisé

 

Le village de Flins-sur-Seine se trouve à trente-cinq kilomètres à l’ouest de Paris. Le site se situe à cinq cents mètres d’une importante autoroute reliant Paris à la Normandie.
Cette école maternelle de 1600 m² dispose d’un centre de loisirs et d’une grande cantine. Nous l’avons conçu en forme de « U », dos à l’autoroute et donnant sur les jardins des pavillons voisins, avec une orientation plein sud.
Le bâtiment est conçu avec des proportions à l’échelle des pavillons typiques qui se trouvent à proximité..