Résidence Privée – Paris (75) – France

 

Lieu: Paris, France
Projet: Rénovation
Surface : 95 m2
Rôle : Architecte et décoration d’intérieur
Statut : Réalisé

Nos clients nous ont engagés pour retrouver l’âme d’origine de ce magnifique appartement Haussmannien. Notre démarche pour les intérieurs intégrait la mise en valeur de leur importante collection d’art. Nous avons restauré l’ensemble des éléments décoratifs d’origine : boiseries, portes, fenêtres, parquets et cheminées.

Projets Divers au Moyen Orient

 

Projet: Etudes dans le Moyen Orient
Surface : 1000 … 100 000 m2
Date: 1996 … 1999
Rôle : Architecte
Statut : Projets

Villa en Toscane – Italie

 

Lieu: Toscane, Italie
Projet: Maison privée
Surface : 460 m2
Rôle : Architecte
Statut : Réalisé

 

Rénovation et transformation de cette ancienne bâtisse du 16ème siècle en maison de vacances.

Immeuble de logements – Malahide – Irlande

 

Lieu: Dublin, Irlande
Projet: Logements
Surface: 2 900 m2
Rôle : Architecte
Statut : Projet

 

Notre projet pour ce bâtiment de 10 logements de prestige est situé au bord de la mer à Dublin. La cour ronde au centre s’ouvre vers la mer et nous avons créé un grand bassin avec un magnolia à son centre. Chaque appartement a une grande terrasse avec vue sur la mer.

 

Résidence Privée – Luzarches (95) – France

 

Lieu: Luzarches, France
Projet: Rénovation et réadaptation
Surface : 230 m2
Rôle : Architecte
Statut : Réalisé

Nous avons conçu une nouvelle résidence sur trois niveaux dans un ancien corps de ferme du 17e siècle. Le niveau d’habitation se trouve au premier étage et donne des vues exceptionnelles sur les magnifiques paysages environnants.

 

 

Appartement dans le Marais – Paris (75) – France

 

Lieu: Le Marais, Paris
Projet: Appartement privé
Surface : 320 m2
Rôle : Architecte
Statut : Réalisé

 

Gabriel Orozco, artiste mexicain de renommée internationale, nous a sollicité pour la conception de son refuge parisien installé dans un immeuble abandonné de la rive droite. Nous avons restitué la beauté et le génie originels de cette demeure du 17ème siècle — dénaturée au cours du temps par d’innombrables interventions aléatoires — pour en faire un lieu insolite qui intègre toutes les exigences de l’artiste.

 

Passages du Ralliement – Angers (49) – France

 

Lieu: Angers, France
Projet: Usage mixte
Surface : 30 000 m2
Rôle : Architecte
Statut : Projet

 

Dans le cadre d’un projet de développement commercial en centre-ville d’Angers, notre mission était d’élaborer une organisation fonctionnelle qui permette un maximum de surfaces locatives en y intégrant la réhabilitation de trois bâtiments historiques : La Poste, La Banque (La Halle) et Le Palais. Ces trois bâtiments de valeur architecturale exceptionnelle sont situés de part et d’autre de la rue Franklin Roosevelt.
Notre proposition intègre des volumes existants et organise la circulation de la clientèle, exploitant et intensifiant la synergie entre locaux commerciaux et espaces de circulation.


Afin de créer une dynamique entre ces bâtiments actuellement autonomes nous proposons la couverture de la rue Franklin Roosevelt et la création d’un ensemble de passerelles et de terrasses.

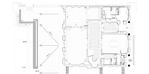
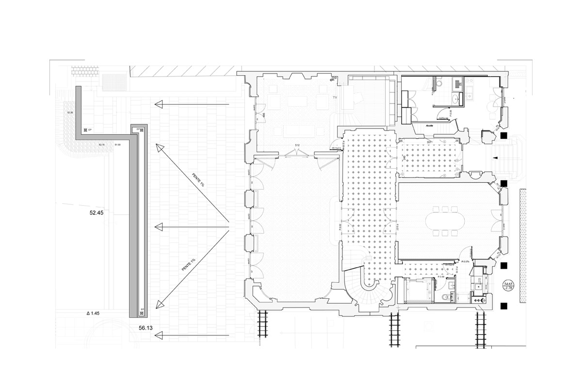
Réhabilitation d’un Hôtel Particulier – Paris (75) – France

 

Lieu: Paris, France
Projet: Hôtel particulier
Surface : 890 m2
Rôle : Architecte et architecture d’intèrieur
Statut : Réalisé

 

Nous avons rénové et restructuré cet hôtel particulier de trois niveaux construit en 1924 par Henri Deglane, l’un des architectes du Grand Palais à Paris. L’excavation du jardin depuis le sous-sol a permis la création d’un niveau supplémentaire désormais de plein pied avec le jardin. La conception contemporaine des nouveaux espaces contraste avec les trois niveaux d’origine de langage classique.
Nous avons ainsi installé au nouveau niveau au rez-de-jardin une salle à manger, un séjour, une cuisine américaine, un cinéma, une piscine, un sauna, une cave à vin et une gym. Une relation forte est créée entre ce niveau et les jardins redessinés devenus directement accessibles depuis l’intérieur. La relation entre les nouveaux jardins et le parc de Ranelagh voisin fait l’objet d’une attention et d’un soin particuliers en collaboration avec les services des Parcs et Jardins de la Ville de Paris.
La réhabilitation et la rénovation des façades protégées au titre des monuments historiques ont été réalisées sous le contrôle des Architectes des Bâtiments de France.

Appartement Duplex dans le Marais – Paris (75) – France

 

Lieu: Paris, France
Projet : Appartement privé
Surface : 550 m2
Rôle : Architecte
Statut : Réalisé

 

Nos clients ont acquis les deux derniers étages d’un hôtel particulier du 17ème siècle dans le Marais à Paris. Nous avons rétabli la distribution d’origine et créé une liaison contemporaine entre les deux niveaux ainsi qu’une nouvelle terrasse. Les permis nécessaires ont été accordés par les services patrimoniaux, approuvés par les Architectes des Bâtiments de France.

 

 

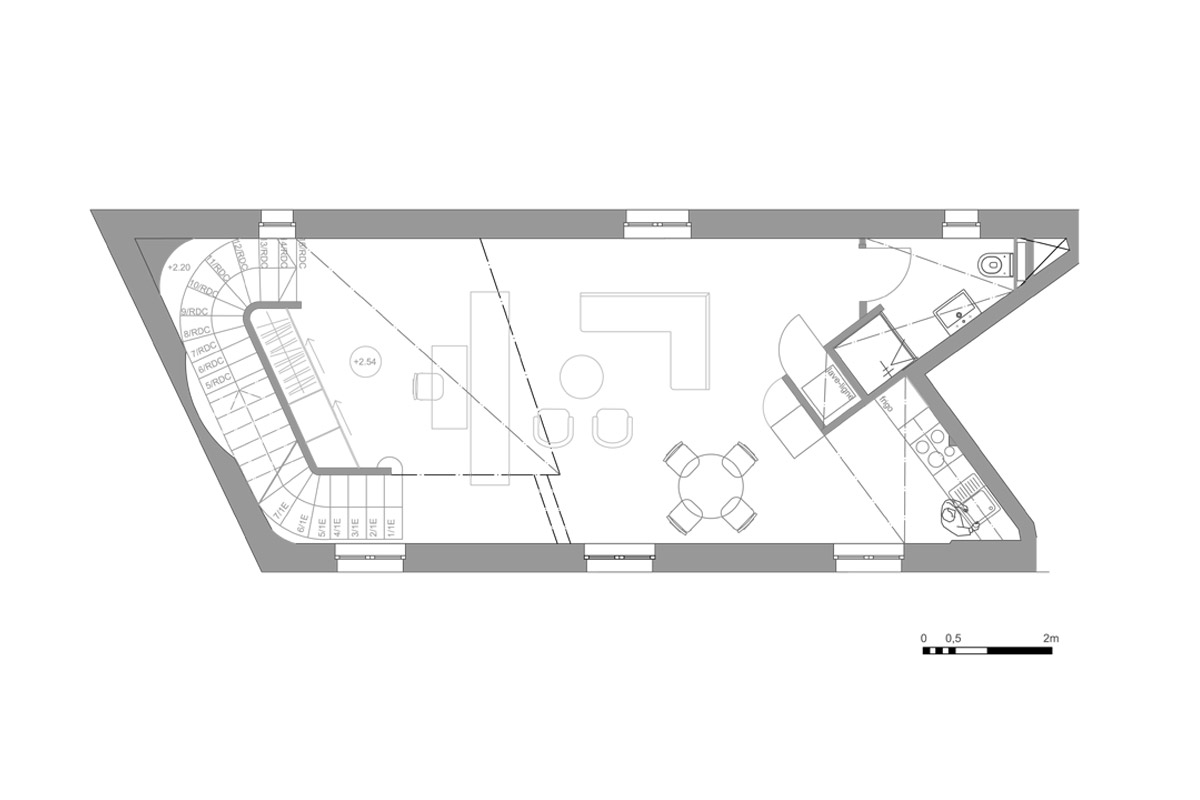
Appartement Quartier Beaubourg – Paris 3 – France

 

Lieu: Paris, France
Projet : Appartement privé
Surface : 95 m2
Rôle : Architecte
Statut : Réalisé

 

Dans cet ancien bâtiment nous avons conçu un appartement avec trois chambres, un salon/ salle à manger, une cuisine américaine d’un esprit de joie. Malgré le manque quasi total de fenêtres existantes nous avons pu créer un véritable paradis Parisien en y incorporant un ancien socle de cheminée découverte sur le site.